豊島区南大塚2丁目新築戸建て ※おかげさまで、ご成約となりました。

(外観) (間取) (間取) (間取)
価格
5480万円
新築戸建
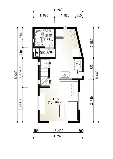
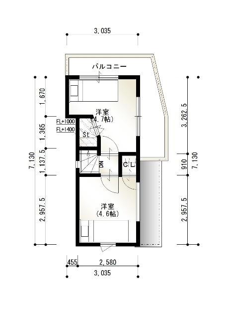
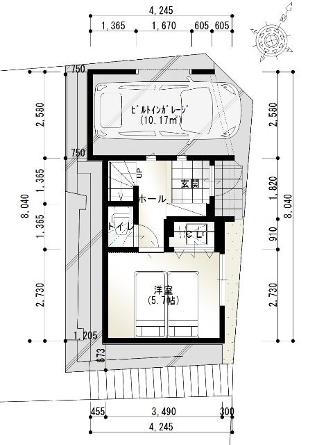
間取
3LDK

所在地 東京都豊島区南大塚2丁目
交通 東京メトロ丸ノ内線新大塚駅 徒歩4分
築年月 新築/中古
面積 77.59m² 計測方式
バルコニー 向き
建物階数 部屋階数
部屋/区画番号 総戸/区画数
建物構造 木造
間取内容          
駐車場   取引態様 売主
引渡/入居時期 現況
地目 宅地 用途地域 第一種中高層住居専用
都市計画 市街化区域 地勢
土地面積 49.69m² 土地面積計測方式 公簿
建ぺい率 60% 容積率 300%
土地権利 所有権 接道状況 角地
周辺環境
設備・条件
物件番号
自社物 状態 成約
※物件掲載内容と現況に相違がある場合は現況を優先と致します。

差間建設 株式会社

〒171-0022東京都豊島区南池袋2丁目17番9号-4階 宅建免許番号:東京都知事 (9) 第47658号
TEL: 03-5985-8151

定休日 水曜日・日曜・祝祭日